中望給排水是集建筑室內給排水和室外給排水(含小區管網)繪圖及專業計算于一體的給排水設計軟件,具有極大的技術優勢:采用智能化的自定義實體技術,管線與設備完全自動處理相互關系,實現了室內給排水設計、消防噴淋設計、虹吸雨水設計、水泵房設計、室外雨污管網設計等,能夠大幅度簡化CAD設計流程,提高設計師的工作效率。
下面,通過消防噴淋設計全流程展示中望給排水在智能繪圖和專業計算一體化上的便捷和精確。
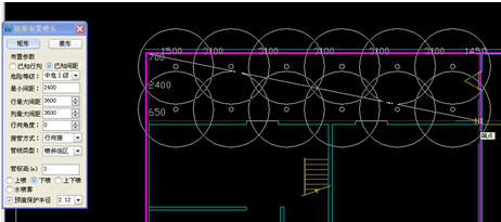
第一、噴頭布置
現代新型建筑物一般都是不規則的,因此在設計過程中,我們可以將這樣一個不規則的防火分區劃分為若干個規則的區域來進行噴頭的布置。中望給排水提供了多種噴頭布置方式:交點噴頭、直線噴頭、弧線噴頭、矩形噴頭、扇形噴頭、等距噴頭、任意噴頭等。對于下圖所示的戶型區域內,可以分為7個矩形區域來進行噴頭布置。

首先布置“1”區噴頭,在中望給排水中執行“矩形噴頭”命令,選擇不同的危險等級來確定最大最小行列間距,這里選擇“中危Ⅰ級”,管標高設置3米,勾選預演保護半徑。在布置噴頭的過程中,設計師可以即時查看是否覆蓋全部區域。值得一提的是,在噴頭布置的同時,支管也一起隨之布置連接完成,非常快速高效。

圖/中望給排水CAD噴頭布置
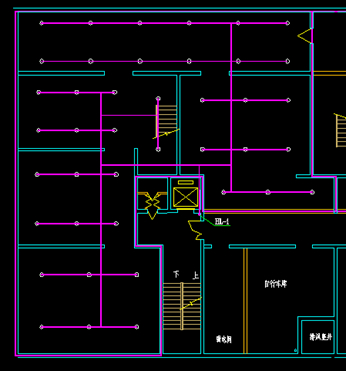
第二、布置干管立管
使用CAD軟件上的管線菜單中的“立管布置”功能,采用“墻角布置”快速布置噴淋立管。當立管布置好后,繪制干管將立管和支管連接起來,設計師在“繪制管線”的時候不需要選擇管線類型,只需要點擊一下立管,系統會自動跳到相應的管線類型,非常智能。

圖/中望給排水CAD智能布置干管立管
第三、噴頭尺寸標注
接下來執行“平面消防”中的“噴頭尺寸”,只需框選噴頭,所有框選噴頭間的尺寸將標識出來。更重要的是,雙擊標注好的尺寸可以快速標注噴頭與軸線之間的距離。
第四、管徑標注
管徑標注也有危險等級設置,此時采用與噴頭布置一致的危險等級。根據管徑標注數量和比例來設定不同的管徑文字高度以達到清晰的效果。在中望給排水中執行“噴淋管徑”命令,選擇噴淋干管,系統將一次性完成所有的管徑標注,可以節省大量時間。

圖/中望給排水CAD實現快速標注
第五、噴淋計算
噴淋計算以圖形繪制過程中設置的相關參數為基礎,根據自動噴水滅火系統設計規范計算出水管中水的流速、流量、壓力等,當流速大于5m/s時將以紫色顯示提示設計師進行管徑校正,校正管徑后圖紙中的管徑自動根據計算結果進行管徑調整。同時,中望給排水可以快速生成計算書和計算表。

圖/中望給排水CAD人性化的管徑校正功能
至此,消防噴淋設計基本完成。需要強調,中望給排水通過噴淋的快速繪制和噴淋計算驗證噴淋布置是否合理,同時校正管徑將結果反饋到圖形繪制中,實現繪圖與計算的智能一體化,從而確保設計的合理性和科學性。
小結:作為中望CAD工程建設行業整體解決方案的組成部分,中望給排水不僅具備室內室外給排水設計所需的專業功能,與中望建筑、結構、暖通、給排水等專業模塊無縫兼容,并且完美兼容市面上其他工程建設各專業設計軟件,徹底解決圖紙兼容性低、數據交互性差等工程建設領域中諸多阻礙CAD協同設計的難題,從而提高給排水設計的科學性和效率。
點擊免費下載中望水暖電http://vthen.com/product/mep/?fm=flash
· 先鋒匯聚|8月27日-28日廣州,邀您共赴工業軟件國際盛會2025-08-14
· 中望軟件數智化轉型峰會廈門站成功舉辦,“CAD+”戰略賦能福建工業可持續創新2025-07-31
· 中望軟件西安峰會圓滿召開,“數智賦能”助推西部工業轉型升級2025-07-02
· 中望軟件杭州峰會成功舉辦,“CAD+”賦能浙江智造縱深發展2025-06-25
·中望3D 2026全球發布:開啟設計仿真制造協同一體化時代2025-06-13
·中望軟件攜手鴻蒙、小米共建國產大生態,引領工業設計新時代2025-06-01
·中望軟件2025年度產品發布會圓滿舉行:以“CAD+”推動工業可持續創新2025-05-26
·中望CAD攜手鴻蒙電腦,打造“多端+全流程”設計行業全場景方案2025-05-13
·玩趣3D:如何應用中望3D,快速設計基站天線傳動螺桿?2022-02-10
·趣玩3D:使用中望3D設計車頂帳篷,為戶外休閑增添新裝備2021-11-25
·現代與歷史的碰撞:阿根廷學生應用中望3D,技術重現達·芬奇“飛碟”坦克原型2021-09-26
·我的珠寶人生:西班牙設計師用中望3D設計華美珠寶2021-09-26
·9個小妙招,切換至中望CAD竟可以如此順暢快速 2021-09-06
·原來插頭是這樣設計的,看完你學會了嗎?2021-09-06
·玩趣3D:如何巧用中望3D 2022新功能,設計專屬相機?2021-08-10
·如何使用中望3D 2022的CAM方案加工塑膠模具2021-06-24
·CAD文字被填充遮擋了怎么辦2016-03-17
·CAD查看圖形面積周長的命令2018-11-12
·如何將圖片保存到CAD圖紙中2016-03-28
·CAD繪圖時如何移動視圖?2022-05-11
·CAD如何將填充圖案移到另一個圖形2023-08-03
·CAD中的坐標框內容如何調整?2017-07-18
·在CAD中如何用命令拆分圖例?2020-02-26
·CAD中如何快速地倒圓角2021-12-02





