繪制機械CAD圖紙中包含有大量的產品零部件,傳統的明細表(BOM)編輯方式需手動繪制表格填寫數據,且后期再次編輯時數據查找非常麻煩,耗費大量時間。中望CAD機械版2015的明細表功能可以根據已標注好的序號快速的生成明細表,而且明細表采用了新實體技術,支持通過雙擊進行編輯,使得明細表的編輯工作變得簡單、方便,從而提高了繪圖效率。
步驟一:
在中望CAD機械版2015中添加完圖幅后,在程序里面輸入命令“XH” 就會彈出下圖所示的對話框。

圖/中望CAD機械版序號設置對話框
設計師在序號類型中可以根據實際需求調整序號內容、顯示及其他選項。當然也可以設置引出序號和對應的引線類型。
步驟二:
在“引出序號 主圖幅”界面點擊【確定】按鈕開始序號標注。如下圖所示,選定序號標注的位置后單擊鼠標左鍵彈出編輯框。

圖/確定序號標注的具體位置

圖/中望CAD機械版序號編輯對話框
填寫圖號、名稱、數量和材料等對應數據后點擊【確定】,即可完成序號標注。
步驟三:
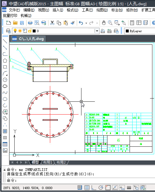
將所有零件標注序號后輸入命令“MX”即可自動生成完整詳細的明細表。

圖/中望CAD機械版自動生成明細表
如果遇到同一零件重復標記的情況,設計師可以在圖紙中找到重復的序號直接刪除即可,中望CAD機械版會自動調整標注的序號順序;修改序號標注的內容時,明細表也會自動同步更新。

圖/智能的序號/明細表編輯功能
通過中望CAD機械版的序號/明細表(BOM)生成的功能,原本需要手動完成的編輯工作變得簡單,設計效率也得到大幅度提升。
· 先鋒匯聚|8月27日-28日廣州,邀您共赴工業軟件國際盛會2025-08-14
· 中望軟件數智化轉型峰會廈門站成功舉辦,“CAD+”戰略賦能福建工業可持續創新2025-07-31
· 中望軟件西安峰會圓滿召開,“數智賦能”助推西部工業轉型升級2025-07-02
· 中望軟件杭州峰會成功舉辦,“CAD+”賦能浙江智造縱深發展2025-06-25
·中望3D 2026全球發布:開啟設計仿真制造協同一體化時代2025-06-13
·中望軟件攜手鴻蒙、小米共建國產大生態,引領工業設計新時代2025-06-01
·中望軟件2025年度產品發布會圓滿舉行:以“CAD+”推動工業可持續創新2025-05-26
·中望CAD攜手鴻蒙電腦,打造“多端+全流程”設計行業全場景方案2025-05-13
·玩趣3D:如何應用中望3D,快速設計基站天線傳動螺桿?2022-02-10
·趣玩3D:使用中望3D設計車頂帳篷,為戶外休閑增添新裝備2021-11-25
·現代與歷史的碰撞:阿根廷學生應用中望3D,技術重現達·芬奇“飛碟”坦克原型2021-09-26
·我的珠寶人生:西班牙設計師用中望3D設計華美珠寶2021-09-26
·9個小妙招,切換至中望CAD竟可以如此順暢快速 2021-09-06
·原來插頭是這樣設計的,看完你學會了嗎?2021-09-06
·玩趣3D:如何巧用中望3D 2022新功能,設計專屬相機?2021-08-10
·如何使用中望3D 2022的CAM方案加工塑膠模具2021-06-24
·CAD用Shift做多夾點移動、拉伸2017-05-19
·CAD怎么繪制水平線和鉛直線2018-11-29
·CAD如何標注圓半徑2017-08-16
·在CAD中怎樣畫出平面立體圖2019-07-17
·CAD如何讓圖層按照名稱來排列2017-07-18
·CAD怎么調整特性欄透明度2024-10-31
·CAD如何繪制虛線2020-09-08
·CAD模型出圖和布局出圖2018-05-30





