中望CAD建筑版2017于日前正式發布,軟件具備有強大的注釋系統,提供文字與編輯、表格與統計、工程符號與尺寸標注等多種建筑設計繪圖所需的智能化功能。這些功能廣泛應用于整個設計過程中,有效幫助設計師縮短設計時間,提高工作效率。
一、方便快捷的文字創建與編輯
工程設計類圖紙中存有大量的文字需處理。因此,書寫和編輯文字能力的高低是衡量一款工程設計軟件易用性與智能化的重要指標。中望CAD建筑版2017就提供了單行文字與多行文字兩種創建方式,設計師只需點擊中望CAD建筑版“菜單—文表符號—單行/多行文字”即可進行文字的創建與編輯,操作十分便捷。
值得一提的是,在中望CAD建筑版中,單行文字的內容可以直接在編輯框內輸入,而且軟件還能自動記憶已輸入過的文字,避免文字的重復輸入。設計師在下拉箭頭菜單中選擇其中某一行文字后,該行文字會移至首行,方便下次調用。

另一方面,中望CAD建筑版2017創建多行字體時,也可直接輸入多行文字。同時,通過其他軟件復制的文本也可直接粘貼。行距、文字樣式、文字高度等內容,在中望CAD建筑版中都可以按照企業的標準要求隨意修改。

二、強大專業的表格功能
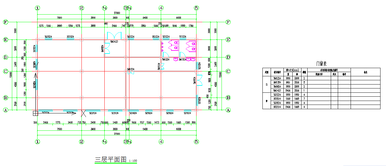
中望CAD建筑版2017處理表格對象的能力更加強大,包括工程設計的各處表格、門窗統計、面積匯總等。應用表格功能,設計師可以快速生成門窗統計與面積匯總的整個表格,生成的bom表可以單個存儲為Excel表格,方便項目統計、材料準備、匯總報告與日后信息的查看再調用。

與傳統表格工具類似,中望CAD建筑版2017新建的表格包含有表格、標題、表頭、表行和表列。而對于單元格和合并格,以及文字、表格線、邊框和背景,都支持設計師根據需求進行靈活的編輯與修改。如果默認的表格與表頭無法滿足工作需要,軟件還支持通過新建表格來實現樣式的更新,最大程度滿足設計師對表格功能的不同處理需求。

三、全面齊全的標注功能
工程符號是建筑設計中最常用的標注之一。在中望CAD建筑版2017中,無論是箭頭引注、做法標注、剖切符號,還是折斷符號標注,都能夠通過輕松便捷的操作步驟來實現。

其中,尺寸標注是廣受一些設計師好評與推薦的功能之一。與常規的CAD平臺軟件的標注功能相比,中望CAD建筑版2017的尺寸標注系統更加專業,完全符合國標建筑制圖規范,按繪圖需求可以便捷創造5種標注樣式,用于軸網、門窗、墻厚標注等。
需強調的是,中望CAD建筑版的標注系統使用圖紙單位度量,標注文字的大小自動適應工作環境的當前比例,無需設計師干預,軟件自動配合布圖功能滿足不同出圖比例的要求。同時,還可以連續快速地標注尺寸,成組成批次地進行二次修改。在中望CAD建筑版中,軸網的尺寸標注、門窗標注和逐點標注等都采用本樣式,如下圖中的三道尺寸標注,每道連續的尺寸標注都是一個整體,而非分散的。

小結:中望CAD建筑版2017強大的注釋系統貫穿始終,作用于繪圖中的每一個小細節,不僅在繪圖上節省時間,還能嚴謹按照設計規范要求快速出圖,真正體現了中望CAD建筑版的專業性,使工程建設設計更準確更高效。
· 先鋒匯聚|8月27日-28日廣州,邀您共赴工業軟件國際盛會2025-08-14
· 中望軟件數智化轉型峰會廈門站成功舉辦,“CAD+”戰略賦能福建工業可持續創新2025-07-31
· 中望軟件西安峰會圓滿召開,“數智賦能”助推西部工業轉型升級2025-07-02
· 中望軟件杭州峰會成功舉辦,“CAD+”賦能浙江智造縱深發展2025-06-25
·中望3D 2026全球發布:開啟設計仿真制造協同一體化時代2025-06-13
·中望軟件攜手鴻蒙、小米共建國產大生態,引領工業設計新時代2025-06-01
·中望軟件2025年度產品發布會圓滿舉行:以“CAD+”推動工業可持續創新2025-05-26
·中望CAD攜手鴻蒙電腦,打造“多端+全流程”設計行業全場景方案2025-05-13
·玩趣3D:如何應用中望3D,快速設計基站天線傳動螺桿?2022-02-10
·趣玩3D:使用中望3D設計車頂帳篷,為戶外休閑增添新裝備2021-11-25
·現代與歷史的碰撞:阿根廷學生應用中望3D,技術重現達·芬奇“飛碟”坦克原型2021-09-26
·我的珠寶人生:西班牙設計師用中望3D設計華美珠寶2021-09-26
·9個小妙招,切換至中望CAD竟可以如此順暢快速 2021-09-06
·原來插頭是這樣設計的,看完你學會了嗎?2021-09-06
·玩趣3D:如何巧用中望3D 2022新功能,設計專屬相機?2021-08-10
·如何使用中望3D 2022的CAM方案加工塑膠模具2021-06-24
·在CAD中如何固定/浮動工具欄?2020-03-24
·如何為加載的CAD二次開發功能新建命令圖標?2024-06-17
·在CAD中如何恢復上一步誤刪除圖形并保留后邊繼續繪制的圖形?2024-02-26
·CAD怎么計算不規則圖形周長2018-03-29
·CAD中想將同一個圖塊復制多份并設置成不同顏色該怎么做2024-05-11
·CAD怎么對齊多個單行文字2024-11-04
·CAD中如何將對象編輯為多段線2018-03-14
·CAD中為什么平移或縮放圖形時不顯示填充?2021-04-25





