CAD在繪制中線的時候,有些人的顯示就是一條直線,這樣會導致后期的繪圖不方便和不明顯,容易導致失誤和不必要的麻煩。我們怎么才能設置好CAD的中心線呢?
我們來看快解決辦法,分析一下這樣的原因。
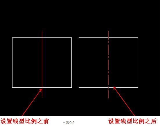
問題的所在是因為CAD中的線型比例設置的并不合理。
我們更改一下這部分的設置即可。我們在命令行中輸入【LTS】即為線型比例的快捷鍵,回車后我們可以看到輸入新線型比例因子,在這個部分我們輸入2,回車后,發現現在的線段是一中心線顯示的形式。我們可以看看下圖的一個對比,是不是我們的中心線更加明顯了。

推薦閱讀: CAD中如何將圓畫的更圓滑?
· 先鋒匯聚|8月27日-28日廣州,邀您共赴工業軟件國際盛會2025-08-14
· 中望軟件數智化轉型峰會廈門站成功舉辦,“CAD+”戰略賦能福建工業可持續創新2025-07-31
· 中望軟件西安峰會圓滿召開,“數智賦能”助推西部工業轉型升級2025-07-02
· 中望軟件杭州峰會成功舉辦,“CAD+”賦能浙江智造縱深發展2025-06-25
·中望3D 2026全球發布:開啟設計仿真制造協同一體化時代2025-06-13
·中望軟件攜手鴻蒙、小米共建國產大生態,引領工業設計新時代2025-06-01
·中望軟件2025年度產品發布會圓滿舉行:以“CAD+”推動工業可持續創新2025-05-26
·中望CAD攜手鴻蒙電腦,打造“多端+全流程”設計行業全場景方案2025-05-13
·玩趣3D:如何應用中望3D,快速設計基站天線傳動螺桿?2022-02-10
·趣玩3D:使用中望3D設計車頂帳篷,為戶外休閑增添新裝備2021-11-25
·現代與歷史的碰撞:阿根廷學生應用中望3D,技術重現達·芬奇“飛碟”坦克原型2021-09-26
·我的珠寶人生:西班牙設計師用中望3D設計華美珠寶2021-09-26
·9個小妙招,切換至中望CAD竟可以如此順暢快速 2021-09-06
·原來插頭是這樣設計的,看完你學會了嗎?2021-09-06
·玩趣3D:如何巧用中望3D 2022新功能,設計專屬相機?2021-08-10
·如何使用中望3D 2022的CAM方案加工塑膠模具2021-06-24
·CAD文字超出了范圍,怎么能快速讓文字在框線范圍內?2024-03-12
·怎樣設置CAD自動保存的時間間隔2018-08-15
·如何在CAD里操作附加欄提取表數據2020-03-18
·cad畫線時候線是空心的怎么解決?2016-06-15
·如何開關CAD的動態輸入尺寸2023-09-25
·CAD如何測量不規則曲線的長度2019-08-29
·CAD實體間的干涉檢查2017-03-30
·使用CAD中的正交模式功能2018-07-31





