我們在CAD中需要進行對平鍵和齒輪的安裝,當這樣是我們該如何正確操作繪制我們需要的內容,大家可參考我們下列的步驟,看看是否能夠幫到大家。
1.軸的繪制
直線根據每個軸肩的尺寸先繪制軸的一半,然后利用鏡像工具將已繪制的軸以一開始繪
制的水平中心線為對稱軸鏡像。軸由長度為58、56、41、60、10、10、30的軸段組成,而它們的對應半徑分別是17.5、20、22.5、24、27.5、26、22.5。
繪制好后,進入塊編輯器進行拉伸動作塊操作。

2.鍵
矩形繪制一長56,寬為10的矩形,選用圓角工具倒圓角,倒角半徑為5。
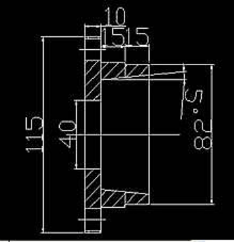
3.齒輪
齒輪剖視圖是將齒輪半解剖得到的,具體形狀和尺寸見視頻操作。
齒輪俯視圖是根據機械制圖中的“高、平、齊”的對應原則繪制的,先用直線捕捉剖視
圖上的參考點做水平拉伸做輔助線,選擇圓捕捉輔助線上的切點做輪轂外形。最后利用陣列工具繪制齒輪上的齒,齒數為38個。
繪制好后,進入塊編輯器進行縮放動作塊操作。

4.滾球軸承

復習工具選項板窗口,通過工具選項板窗口直接插入滾珠軸承動態塊。
工具選項板窗口操作:點擊“工具”菜單>工具選項板,在彈出的選項板中選擇機械模板中的滾珠軸承,直接插入CAD界面即可。
5.軸承蓋子
具體操作見視頻。這里要注意左軸承蓋和右軸承局部形狀不一樣,左軸承蓋在中心線位
置多一個直徑40的通孔。

6.零件組裝
以各個零件的水平中心線為基準線,利用移動和復制功能捕捉特征點進行安裝。
裝配好后,進入塊編輯器中進行零件可見性塊操作。

7.零件標號標注
利用新增功能:項目符號和列表對裝配圖上的零件進行注釋。
操作步驟:繪圖>文字>多行文字。在彈出的文字格式對話框中單擊選項按紐,選擇項目符號和列表。
8.提取快操作數據
利用新增功能:從塊屬性中提取數據對二維CAD操作環節的塊操作信息進行數據提取。
操作步驟:工具>屬性提取。
推薦閱讀:CAD繪制三維鮮花教程
推薦閱讀:CAD培訓
· 先鋒匯聚|8月27日-28日廣州,邀您共赴工業軟件國際盛會2025-08-14
· 中望軟件數智化轉型峰會廈門站成功舉辦,“CAD+”戰略賦能福建工業可持續創新2025-07-31
· 中望軟件西安峰會圓滿召開,“數智賦能”助推西部工業轉型升級2025-07-02
· 中望軟件杭州峰會成功舉辦,“CAD+”賦能浙江智造縱深發展2025-06-25
·中望3D 2026全球發布:開啟設計仿真制造協同一體化時代2025-06-13
·中望軟件攜手鴻蒙、小米共建國產大生態,引領工業設計新時代2025-06-01
·中望軟件2025年度產品發布會圓滿舉行:以“CAD+”推動工業可持續創新2025-05-26
·中望CAD攜手鴻蒙電腦,打造“多端+全流程”設計行業全場景方案2025-05-13
·玩趣3D:如何應用中望3D,快速設計基站天線傳動螺桿?2022-02-10
·趣玩3D:使用中望3D設計車頂帳篷,為戶外休閑增添新裝備2021-11-25
·現代與歷史的碰撞:阿根廷學生應用中望3D,技術重現達·芬奇“飛碟”坦克原型2021-09-26
·我的珠寶人生:西班牙設計師用中望3D設計華美珠寶2021-09-26
·9個小妙招,切換至中望CAD竟可以如此順暢快速 2021-09-06
·原來插頭是這樣設計的,看完你學會了嗎?2021-09-06
·玩趣3D:如何巧用中望3D 2022新功能,設計專屬相機?2021-08-10
·如何使用中望3D 2022的CAM方案加工塑膠模具2021-06-24
·CAD中怎么繪制兩扇推拉的窗戶平面圖2018-08-02
·CAD怎樣快速有效的計算面積?2020-04-07
·CAD如何使粗糙的邊界變得平滑2017-09-19
· CAD臨時追蹤點的巧用2016-08-04
·CAD標注基本尺寸的方法(上)2018-01-30
·CAD縮放時顯示已無法進一步縮小怎么辦?2019-12-20
· CAD路徑拉伸如何創建路徑2017-03-01
·CAD出現文字自動堆疊的情況該如何解決2024-03-13





