在使用CAD繪圖的時候,我們可能會需要按照一定的比例將圖形進行縮放,今天介紹一個簡單的圖形縮放方法。
1、 首先,大家打開CAD軟件
2、 將要縮放的圖形保存為塊,可以鼠標右鍵拖動圖形粘貼為塊

3、 點擊【修改】-【特性】按鈕,打開【特性】選項板

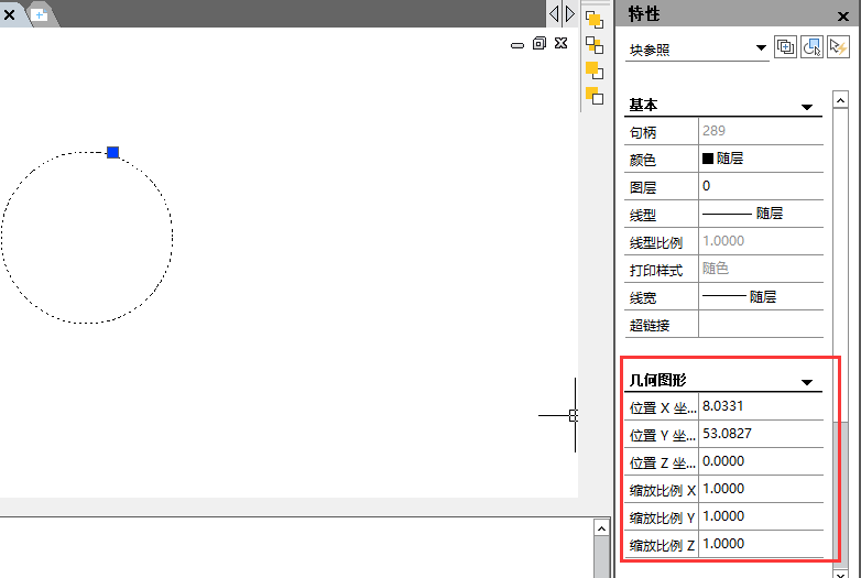
4、 在CAD中用鼠標框選需要縮放的圖形,此時【特性】選項板顯示如圖

5、 在縮放比例X/Y/Z后面的文本框中直接輸入縮放比例(Z軸在三維視圖中顯示,這里以二維圖形為例)
(1) 如果XY縮放比例相等,則是等比縮放

(2) 如果XY縮放比例不一樣,則是不等比縮放

· 先鋒匯聚|8月27日-28日廣州,邀您共赴工業軟件國際盛會2025-08-14
· 中望軟件數智化轉型峰會廈門站成功舉辦,“CAD+”戰略賦能福建工業可持續創新2025-07-31
· 中望軟件西安峰會圓滿召開,“數智賦能”助推西部工業轉型升級2025-07-02
· 中望軟件杭州峰會成功舉辦,“CAD+”賦能浙江智造縱深發展2025-06-25
·中望3D 2026全球發布:開啟設計仿真制造協同一體化時代2025-06-13
·中望軟件攜手鴻蒙、小米共建國產大生態,引領工業設計新時代2025-06-01
·中望軟件2025年度產品發布會圓滿舉行:以“CAD+”推動工業可持續創新2025-05-26
·中望CAD攜手鴻蒙電腦,打造“多端+全流程”設計行業全場景方案2025-05-13
·玩趣3D:如何應用中望3D,快速設計基站天線傳動螺桿?2022-02-10
·趣玩3D:使用中望3D設計車頂帳篷,為戶外休閑增添新裝備2021-11-25
·現代與歷史的碰撞:阿根廷學生應用中望3D,技術重現達·芬奇“飛碟”坦克原型2021-09-26
·我的珠寶人生:西班牙設計師用中望3D設計華美珠寶2021-09-26
·9個小妙招,切換至中望CAD竟可以如此順暢快速 2021-09-06
·原來插頭是這樣設計的,看完你學會了嗎?2021-09-06
·玩趣3D:如何巧用中望3D 2022新功能,設計專屬相機?2021-08-10
·如何使用中望3D 2022的CAM方案加工塑膠模具2021-06-24
·“Ctrl+0”怎么用?2020-02-26
·CAD查找替換文字的步驟2022-03-23
·CAD文字轉換成線條的方法步驟2020-07-23
·CAD平面圖標高技巧2020-05-28
·CAD中三維對象怎么設置四視圖?2018-11-05
·如何自定義CAD打印顏色?2022-04-12
·CAD中光柵圖像顯示不清晰怎么處理2025-05-06
·怎么修改CAD弧長標注中圓弧標記2017-08-18





