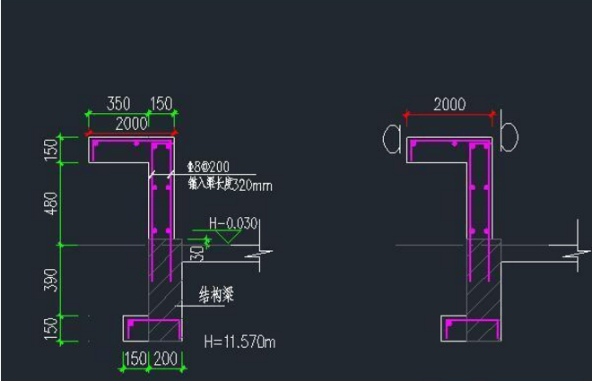
在使用CAD軟件制圖的時候經常會碰到要將一些小比例的圖形繪制成大樣圖的情況,但是直接把線段放大來畫又會導致實際線段與標注的數值不一,這時候就SC縮放命令就派上用場啦!
1.先按1:1比例繪制好圖形;

2.在命令行輸入SC,對需要縮放的圖形進行框選;
3.基點指定;
4.輸入R確定參照;
5.先后點擊a、b點,輸入2000作為新的長度,回車確認,完成操作。

推薦閱讀:CAD快捷鍵
推薦閱讀:模具CAD
· 先鋒匯聚|8月27日-28日廣州,邀您共赴工業軟件國際盛會2025-08-14
· 中望軟件數智化轉型峰會廈門站成功舉辦,“CAD+”戰略賦能福建工業可持續創新2025-07-31
· 中望軟件西安峰會圓滿召開,“數智賦能”助推西部工業轉型升級2025-07-02
· 中望軟件杭州峰會成功舉辦,“CAD+”賦能浙江智造縱深發展2025-06-25
·中望3D 2026全球發布:開啟設計仿真制造協同一體化時代2025-06-13
·中望軟件攜手鴻蒙、小米共建國產大生態,引領工業設計新時代2025-06-01
·中望軟件2025年度產品發布會圓滿舉行:以“CAD+”推動工業可持續創新2025-05-26
·中望CAD攜手鴻蒙電腦,打造“多端+全流程”設計行業全場景方案2025-05-13
·玩趣3D:如何應用中望3D,快速設計基站天線傳動螺桿?2022-02-10
·趣玩3D:使用中望3D設計車頂帳篷,為戶外休閑增添新裝備2021-11-25
·現代與歷史的碰撞:阿根廷學生應用中望3D,技術重現達·芬奇“飛碟”坦克原型2021-09-26
·我的珠寶人生:西班牙設計師用中望3D設計華美珠寶2021-09-26
·9個小妙招,切換至中望CAD竟可以如此順暢快速 2021-09-06
·原來插頭是這樣設計的,看完你學會了嗎?2021-09-06
·玩趣3D:如何巧用中望3D 2022新功能,設計專屬相機?2021-08-10
·如何使用中望3D 2022的CAM方案加工塑膠模具2021-06-24
·CAD怎樣查看圖形特性并修改?2020-04-27
·CAD實用技巧(滾動條、打印格式、線型、路徑不全)2016-09-21
·CAD如何實現模型和布局空間的圖形對齊2025-05-12
·CAD如何導入Excel文字到指定坐標2023-11-28
·CAD正三角形如何繪制2020-02-11
·CAD中的填充比例如何計算的2017-06-07
·CAD想要箭頭彎曲怎么設置呢?2020-04-16
·CAD中組和塊間的區別是什么2021-03-15





