制作尖角和圓角是CAD制圖過程十分常見的操作,但對于CAD使用新手而言,常常會遇到想要建立尖角卻建成圓角的情況,本文將給大家詳細介紹CAD中使用FILLET命令建立尖角與與圓角的區別。
用FILLET命令畫圓角:
1.用中望CAD打開一張圖紙文件,縮放到合適的顯示位置;

2.在命令行中輸入【FILLET】命令,按回車鍵確認開啟;
3.在命令行中輸入【R】,按回車確認;再輸入【2】,按回車確認;這樣就將倒圓角的半徑設置成了2。
4.如果需要對多個對象進行倒圓角,可以再在命令行中輸入【M】選擇多個,這樣處理完一個倒圓角后不需要再次啟動Fillet命令就可以直接選擇下一個倒圓角對象;

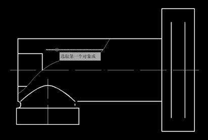
5.選擇圖示中的水平線作為第一個對象,再選擇垂直線作為第二個需要倒圓角的對象。這樣就完成了兩條垂線之間的倒圓角,如圖所示:



用FILLET命令畫尖角:
1.再次在命令行中輸入【FILLET】命令,按回車鍵確認開啟;命令行中會彈出“當前設置”,由圖可以看到當前半徑設為了2;

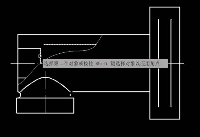
2.選擇水平線作為第一個倒圓角對象;如果此時直接選擇第二個對象,則系統會新建一個半徑為2的倒圓角,因此在選擇第二個對象時,應該按住Shift鍵,同時再選擇垂直的線段,則此時系統會以0作為半徑,新建一個尖角,如圖所示:


以上就是建立圓角與尖角的區別,你學會了嗎?
推薦閱讀:正版CAD
推薦閱讀:CAD下載
· 先鋒匯聚|8月27日-28日廣州,邀您共赴工業軟件國際盛會2025-08-14
· 中望軟件數智化轉型峰會廈門站成功舉辦,“CAD+”戰略賦能福建工業可持續創新2025-07-31
· 中望軟件西安峰會圓滿召開,“數智賦能”助推西部工業轉型升級2025-07-02
· 中望軟件杭州峰會成功舉辦,“CAD+”賦能浙江智造縱深發展2025-06-25
·中望3D 2026全球發布:開啟設計仿真制造協同一體化時代2025-06-13
·中望軟件攜手鴻蒙、小米共建國產大生態,引領工業設計新時代2025-06-01
·中望軟件2025年度產品發布會圓滿舉行:以“CAD+”推動工業可持續創新2025-05-26
·中望CAD攜手鴻蒙電腦,打造“多端+全流程”設計行業全場景方案2025-05-13
·玩趣3D:如何應用中望3D,快速設計基站天線傳動螺桿?2022-02-10
·趣玩3D:使用中望3D設計車頂帳篷,為戶外休閑增添新裝備2021-11-25
·現代與歷史的碰撞:阿根廷學生應用中望3D,技術重現達·芬奇“飛碟”坦克原型2021-09-26
·我的珠寶人生:西班牙設計師用中望3D設計華美珠寶2021-09-26
·9個小妙招,切換至中望CAD竟可以如此順暢快速 2021-09-06
·原來插頭是這樣設計的,看完你學會了嗎?2021-09-06
·玩趣3D:如何巧用中望3D 2022新功能,設計專屬相機?2021-08-10
·如何使用中望3D 2022的CAM方案加工塑膠模具2021-06-24
·CAD的break命令操作2021-10-26
·CAD注釋性塊的制作方法2021-06-21
·CAD怎么顯示三維視圖2025-01-17
·提高CAD繪圖效率的途徑和技巧2022-01-25
·CAD中圖元編組了但卻失效的原因2024-07-31
·CAD繪制彩色圖塊的教程2018-07-09
·為什么CAD無法刪除丟失關聯文件的數據鏈接?2024-01-30
·CAD標注引線如何設置?2022-03-29





