我們在創建好圖層之后,就可以在不同的圖層內繪制圖形了。靈活地使用圖層,在能夠使圖面清晰、簡潔,同時也能為繪圖和打印帶來便利。
1.切換當前圖層
當前層時當前工作狀態下所處的圖層。當設定某一圖層為當前層后,接下來繪制的圖形對象都將位于該圖層中。如果以后想在其他圖層中繪圖,就需要更當前層設置。
我們只需要在【圖層特性管理器】右側選項框下拉之后看到我們不同的圖層,我們只需要選中需要的圖層,就可以設置其為當前的圖層,并且該圖層的各類詳細的設置都顯示出。

我們也可以通過點擊【圖層特性管理器】,在他們彈出的對話框中進行當前圖層的設置,參考下圖。

2.轉換當前圖形所在的圖層
在CAD中,我們還可以十分靈活的進行圖層轉換,即將某一圖層內的圖形轉換至另一個圖層,同時使其顏色、線型、線寬等特性發生變化。
如果某圖形對象需要轉換圖層,此時可以先選擇該圖形對象,然后單擊展開【圖形】工具欄或者面板中的【圖層】下拉列表,選擇到要轉換的目標圖層即可,參考下圖。

此外,通過【特性】和【快捷特性】選項板也可以轉換圖形所在的圖層。選擇需要轉換圖層的圖形,打開【快捷特性】或者【特性】選項板,在【圖層】下拉列表中選擇目標圖層即可,參考下圖。

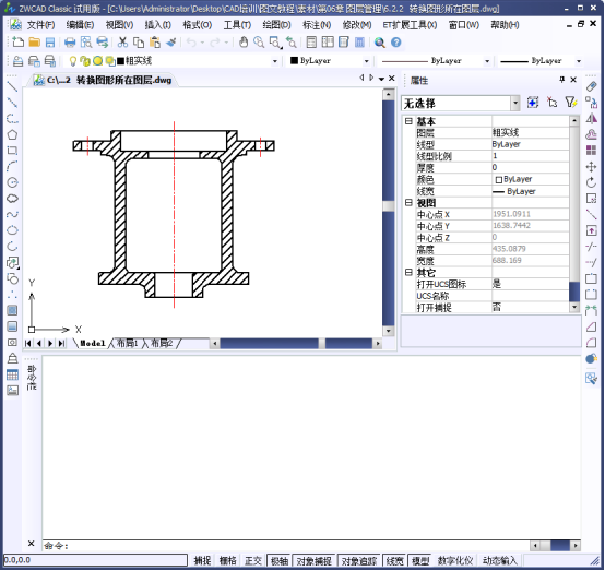
實例:轉換圖形所在圖層
1.我們使用中望CAD打開我們素材文件,參考下圖。

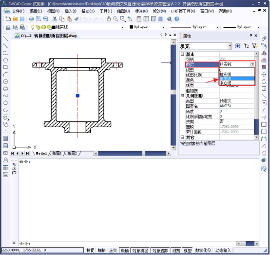
2.單擊選擇剖面填充圖案,展開【圖層】面板中的【圖層】下拉列表,選擇【剖面線】圖層作為目標圖層,參考下圖。

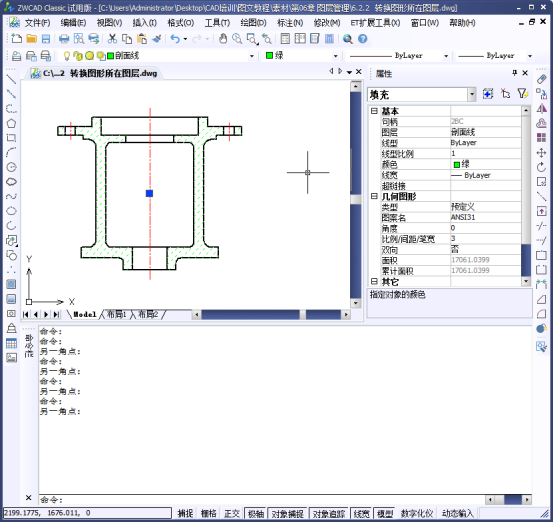
3.選擇好之后,我們就可以看到填充的圖案立即繼承【剖面線】圖層的相關特性,包括線寬、顏色等,我們可以和上圖做出對比,參考下圖。

技巧點撥:
展開【圖層】面板或工具欄中的【圖層】下拉列表,單擊狀態圖標,可在不打開【圖層特性管理器】選項板的情況下,快速設置圖層的狀態。